Global Village

Overview

Global Village, a LEED Certified Silver building, embraces all that campus living has to offer while being globally responsible. Situated on the west side of campus, this suite-life living is located in RIT’s Global Village and steps from global-inspired dining, fair trade and local shopping, relaxing, and fitness facilities with close access to academic buildings.

Modern interiors complement a mix of 4 to 6 person suites and studio apartments with communal spaces for gaming and socializing. This Upperclass student residence is supported by a Resident Advisor while embracing independent living.

Eligibility

Students eligible to live in Global Village include:
Current Student
Transfer/Graduate Students

 

Meal Plan

Students living in Global Village have the option to add a meal plan.
Meal Plans

Room Type

Studio with kitchen

Total 17' x 25'
• Living room 17' x 14'
• Kitchen 13' x 8'
• Bathroom 8' x 11'

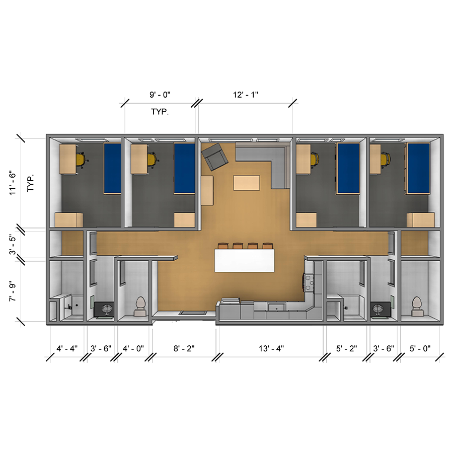
4 bed, 2 bath suite with kitchen

• Living room 11.6' x 12'1"
• Kitchen 11' x 14'
• (4) Single bedrooms 11'6" x 9'
*Shared living room and shared kitchen

5 bed, 2 bath suite w/o kitchen

• Living room 12'2' x 10'6"
• (4) Single bedrooms 12' x 8'
• (1) Double bedroom (2 students) 15'6" x 10'6"
*Shared living room

5 bed, 2 bath suite with kitchen

Dimensions in length x width
• Living room 11'x12'
• Kitchen 11'x11'
• (4) Single bedrooms 12'x8'
• (1) Double bedroom (2 students) 16'x11'
*Shared living room and shared kitchen

Included Amenities

  • Accessible Units
  • Air Conditioning
  • Blue Light Emergency Phones
  • Electronic Safety Alarm System
  • Elevator
  • Ethernet Jacks
  • Fire Extinguishers
  • Fire Strobe Lighting
  • Fitness Center
  • Free Shuttle Service
  • Free Wifi
  • Furnished
  • Gender Inclusive
  • Kitchen Access
  • Kitchen In-Unit
  • Laundry Facility in Building
  • Laundry Included in Rent
  • Live-in Residence Life Staff
  • Locked 24/7 with Card Access
  • Meal plan Optional
  • Microwave in Lounge
  • Microwave in Unit
  • Private Sleep Room
  • Rent Placed on Student Account
  • Residential Parking
  • Shared Lounge
  • Smoke-free
  • Utilities Included
  • Conference Rooms/Classroom- Campus Connection Hub
  • Grill & Picnic Area
  • Residence Life Staff Offices
  • Volleyball Court

Room Information

We look forward to helping you get settled in your new room.
Find out what is included in your room, what to bring, and answers to other frequently asked questions.

Learn More

Comparison Tool

With a vast amount of housing options and amenities, our comparison tool allows you to compare residences side by side and by features. Find the option that best suits you.

Learn More

brick building with a banner on it reading "Home of Thinkers, Makers, Doers"

Rates

- Global Village
Room Size
Per Semester, Per Person
Per 2 Semester, Per Person
Per Summer, Per Day
Double without kitchen
$5,162
$10,324
N/A
Double with kitchen
$5,484
$10,968
N/A
Single without kitchen
$6,048
$12,096
N/A
Single with kitchen
$6,363
$12,726
N/A
Studio
$8,698
$17,396
N/A
- Global Village
Room Size
Per Semester, Per Person
Per 2 Semester, Per Person
Per Summer, Per Day
Double with kitchen
$5,649
$11,298
N/A
Double without kitchen
$5,291
$10,582
N/A
Single with kitchen
$6,586
$13,172
N/A
Single without kitchen
$6,260
$12,520
N/A
Studio
$9,090
$18,180
N/A

Mailing Address

Your Name
GV Bldg # Room #
6000 Reynolds Drive
Rochester, New York 14623

Mail and package pickup is at at the Global Village Post Office